Terreno con proyecto aprobado y licencia activa hasta 2027 en Calonge
Tu futura casa no empieza con una idea. Empieza aquí.
No es solo un terreno.
Es un terreno con un proyecto ejecutado, licencia activa hasta 2027 y lo más importante: toda la parte difícil ya está hecha.
📍 Ubicación: Carrer Ripollès – En una zona residencial consolidada de Calonge, con vistas abiertas y una pendiente natural perfecta para un diseño arquitectónico moderno y funcional.
✅ ¿Qué incluye?
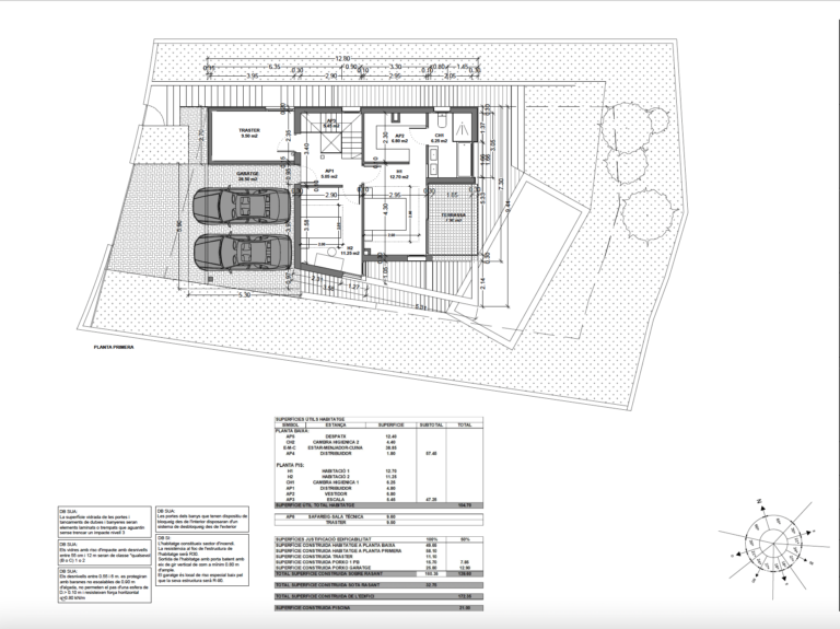
- Proyecto completo para una vivienda unifamiliar aislada de diseño contemporáneo.
- Dos plantas + sótano, integradas con la topografía del terreno.
- Piscina privada de 7x3m ya incluida en el diseño.
- Garaje amplio (28,5 m²) con acceso directo.
- Distribución estudiada para vivir cómodo:
- 3 habitaciones dobles
- 2 baños completos
- 1 aseo de cortesía
- Zona de día abierta con salón/comedor y cocina integrada
- Trastero
- Terraza con orientación ideal para disfrutar del sol
📐 Superficie construida total:
- Vivienda: 135 m² útiles aprox.
- Construcción autorizada: hasta 187 m²
- Parcela con ligera pendiente, ideal para aprovechar vistas y privacidad.
🔍 Y lo más importante:
- Proyecto básico y ejecutivo ya pagados.
- Estudio geotécnico realizado.
- Licencia activa hasta el 2027.
- Planos y mediciones listos para empezar mañana si quieres.
- Cimentación pensada para el tipo de suelo (granito alterado – sauló) con garantías técnicas.
- Ahorro de tiempo, disgustos y muchos euros.
¿Quieres construir sin tener que enfrentarte a arquitectos, permisos, tasas, planos y sorpresas?
Este terreno no es para el que “ya veremos”, sino para el que quiere empezar a construir y vivir.
Para quien valora su tiempo, odia las esperas y prefiere poner ladrillos que excusas.
Si quieres una propiedad lista para construir sin pasar por el purgatorio burocrático, acabas de encontrarla.
Llámame antes de que lo haga otro que también está harto de mirar solares vacíos sin futuro.
Ref. V.201










































